Concours d’architecture et d’ingénierie civile à un degré en procédure ouverte
Lieu: Saint-Maurice
Statut: non primé
Maitre de l’ouvrage: Canton du Valais
Collaboration: Cambium Ingéniérie SA
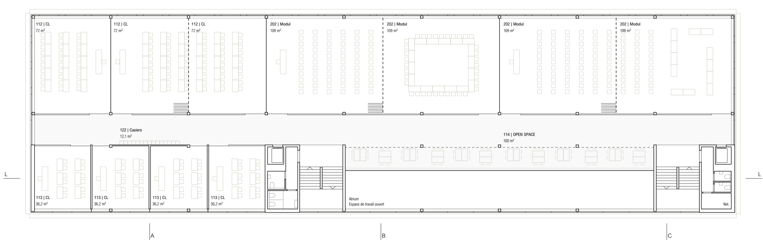
Le projet propose un nouveau campus pour la Haute École Pédagogique du Valais sur le plateau de la gare de Saint-Maurice. Les bâtiments s’implantent le long des voies ferrées et structurent une nouvelle place publique. Une rue centrale relie les différents programmes et organise les circulations et les usages. Les salles de classes sont orientées à l’Est pour une ventilation naturelle et limiter les nuisances sonores. Ces espaces sont pensés pour être modulables et adaptés aux différents usages. Le bâtiment repose sur une gestion passive de l’énergie et l’utilisation de planchers mixte bois/béton pour réduire l’empreinte carbone et améliorer l’inertie thermique.





